Описание
Характеристики
Информация для заказа
Монтажный элемент для монтажа в конструкцию из профиля TECEprofil
или для установки в металлических или деревянных стоечно-балочных
конструкциях, а также для пристенного или углового монтажа.
Для стеклянной панели TECElux с сенсорным или механическим блоком
управления, с возможностью ручной регулировки высоты до 8 см.
Полностью собран, состоит из:
Смывной бачок TECE:
• Бачок изготовлен из ударопрочного пластика
• Полностью собран и опечатан
• Заливной угловой вентиль смонтирован
• Подключение к системе водоснабжения с внутренней резьбой 1/2"
• Объем бачка — 10 литров; Установлен стандартный объем большого
смыва — 6 литров, также возможна установка объема большого смыва
9/7,5/4,5 литров; Объем малого смыва — 3 литра. Остаточный объем
воды для досмыва
• В изоляции для предотвращения образования конденсата
• Протестирован согласно DIN EN 14055
• Группа фитингов 1 согласно DIN 4109
• Заливной клапан с низким уровнем шума
• С контейнером для гигиенических таблеток. Позволяет загружать
гигиенические таблетки в бачок для освежения смыва.
Модуль:
• Прочная монтажная рама окрашенная порошковой краской
• Регулируемые по глубине направляющие для верхней стеклянной
панели с блоком управления приводом и нижней стеклянной панели, с
возможностью ручной регулировки высоты
• Две регулируемые в диапазоне 0-200 мм опоры для крепления к полу
• Две крепежные шпильки и гайки M 12
• Установочное расстояние для унитаза 180 мм
• Гибкий фановый отвод DN 90 из PE-HD (свариваемый), включая
переходник DN 90/100 из полипропилена
• Комплект патрубков для подсоединения унитаза DN 90, включая
защитные заглушки
• Высокоэффективная защита внутренних пространств конструкции
• Подходит для стен с толщиной чистовой отделки до 45 мм
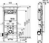
• Размеры (В x Ш x Г): 1120 x 500 x 180 мм
Дополнительно приобретается:
• Верхняя стеклянная панель с блоком управления
• Нижняя стеклянная панель для установки унитаза
• Крепежные элементы для установки перед стеной, угловой установки
или установки в деревянные стоечно-балочные конструкции
Дополнительные принадлежности (опционально):
система очистки воздуха TECElux ceramic-Air (9660000), только в
сочетании с верхней стеклянной панелью sen-Touch с сенсорным блоком
управления.
| Основные атрибуты | |
|---|---|
| Производитель | Tece |
| Страна производитель | Германия |
| Объем смывного бачка | 10 л |
| Вес | 20.3 кг |
| Габаритные размеры | |
| Высота | 1120 мм |
| Ширина | 500 мм |
| Глубина | 160 мм |
| Пользовательские характеристики | |
| Материал | сталь |
| Гарантия | 10 лет |
| Режим смыва | двухрежимный |
| Клавиша в комплекте | Нет |
| Назначение | для подвесного унитаза |
- Цена: 658 970 ₸



